一、简答题(共5小题,每小题5分,共25分)
1、何为基本杆组?举例画出一个Ⅲ级杆组,并简述机构的组成原理。
2、说出三种可以实现间歇运动的机构,对其中一种分析组成结构并说出特点。
3、什么是机构的部分平衡?并列举两种方法。
4、何为运动副的总反力?考虑摩擦时,转动副中总反力的方向如何确定?
5、平底从动件盘型凸轮机构会不会发生自锁现象?请作简要分析。
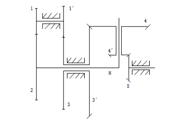
二、计算图(a)、(b)机构的自由度。(2小题,每小题7分,共14分)
(注意:若运动链中存在复合铰链、局部自由度及虚约束的情况,应予以明确指出。)
三、(20分)在下图所示轮系中,已知各标准齿轮的齿数为:Z1=24,Z1′=30,Z2=95,Z3=89,Z3′=102,Z4=80,Z4′=40,Z5=17。试求传动比i15,并说明齿轮5的转向和齿轮1是否相同。
 
 
四、(16分)如下图所示机构中,各构件的尺寸 、
、 、
、 、
、 、
、 已知,曲柄
已知,曲柄 以等角速度
以等角速度 沿顺时针方向回转,
沿顺时针方向回转, 已知,试用矢量方程图解法,以适当比例尺作其速度图,分别求解图示位置中C、E和F点的速度
已知,试用矢量方程图解法,以适当比例尺作其速度图,分别求解图示位置中C、E和F点的速度 ,
, 和
和 (要求:写出作图的矢量方程和主要步骤。作图过程中,尺寸不作严格要求,构件长度参照试卷上的图形确定即可)。
(要求:写出作图的矢量方程和主要步骤。作图过程中,尺寸不作严格要求,构件长度参照试卷上的图形确定即可)。
 
 
五、(20分)如下图所示凸轮机构,主动件凸轮为偏心圆盘,转向为顺时针旋转,OA=55mm,OO1=10mm,R=25mm。试用反转法作图求解:
(1) 在图中作出凸轮的基圆,标注基圆半径r。
(2) 在图中标注出摆动推杆接触点在C点时的压力角 α。
α。
在图中标注出摆动推杆接触点在C点时摆动推杆的角位移φ。
(3) 在图中标注出摆动推杆接触点从C点到B点过程中,凸轮转过的角度δ。
(简要写出作图步骤,保留作图线条;作图过程中,其它尺寸不作严格要求,参照试卷上的图形位置作图即可。)
 
 
六、(20分)一对渐开线标准正常齿制直齿圆柱齿轮传动, 传动比i12=1.8,模数m=2mm。求:
传动比i12=1.8,模数m=2mm。求:
(1) 当标准安装时,另一个齿轮齿数z2、节圆半径 各为多少?
各为多少?
(2) 当(1)问中两个标准齿轮按中心距 安装时,两个齿轮分度园半径
安装时,两个齿轮分度园半径 、节圆半径
、节圆半径 、啮合角
、啮合角 和顶隙c各为多少?
和顶隙c各为多少?
(3) 在(2)问中两轮是否为无侧隙啮合?如是无侧隙啮合,为什么?若不是应采用什么类型的变位齿轮传动方式能达到无侧隙啮合?
(4) 当安装中心距 时,为保证两轮做无侧隙啮合,改用一对标准斜齿圆柱齿轮传动(齿数不变,
时,为保证两轮做无侧隙啮合,改用一对标准斜齿圆柱齿轮传动(齿数不变, ),此对斜齿轮的螺旋角
),此对斜齿轮的螺旋角 各为多少?
各为多少? 
 
 
七、(20分)设计一曲柄为主动件的曲柄摇杆机构,要求满足以下条件:
(1) 如下图所示,当机构处于一个极限位置时,连杆处于B2C2,其长度lBC=40mm。当机构处于另一个极限位置时,连杆处于p1线上。
(2) 连杆处于p1线上时,机构的压力角为零。
试采用图解法设计该机构,简要说明作图步骤,保留作图线。

八、(15分)某机组主轴转一周为一个运动循环,取主轴为等效构件。已知等效驱动力矩 为常数,其大小等于19.6N·m,等效阻力矩
为常数,其大小等于19.6N·m,等效阻力矩 在一个运动循环中的变化规律如下图所示,主轴的平均角速度
在一个运动循环中的变化规律如下图所示,主轴的平均角速度 =10rad/s。为减小主轴的速度波动,在其上装有一转动惯量
=10rad/s。为减小主轴的速度波动,在其上装有一转动惯量 =9.8kg·
=9.8kg· 的飞轮。若不计机组中其他构件的质量和转动惯量,试求:
的飞轮。若不计机组中其他构件的质量和转动惯量,试求:
(1)最大盈亏功ΔWmax;
(2)不均匀系数 ;
;
(3)主轴的最大和最小角速度 ,
, 发生在何处。
发生在何处。

附件: 宁波大学2022年009机械工程与力学学院考研科目 891理论力学(甲)初试试卷(A卷) 考试真题.docx 宁波大学2022年009机械工程与力学学院考研科目 892机械原理初试试卷(A卷) 考试真题.docx.docx


 
                 
                